Part 1 Part 2
Andreau, J. 1999. Banking and business in the Roman world. New York: Cambridge University Press, p. 71-79.
Coarelli, F. 2002. Pompeii. New York: Riverside Book Co., p. 159.
Camodeca G., 1991.
Gli Archivi Privati di Tabulae Ceratae e di Papiri Documentari. Pompei
ed Ercolano: Case, Ambienti e Modalità di Conservazione, pp. 21-25.
Camodeca, G., 1999.
Tabulae Pompeianae
Sulpiciorum. Edizione
critica dell’archivio puteolano dei Sulpicii.
Elia, O. Il portico
dei triclini del pagus maritimus di Pompeii, Bollettino d’Arte 1961, Fasc.
III, pp.200-211.
Giordano, C. Su
alcune tavolette cerate dell’agro Murecine, Rend/Nap 41, (1966), p.107-121.
Guzzo, P., 2003. Tales from an eruption. Milano, Electa,
p. 169-179.
Guzzo, P., (A
Cura di), 1997. Pompeii: Picta Fragmenta. Torino: Umberto Allemandi,
p.134-149.
Guzzo, P., (A
cura di), 2006. Argenti a Pompei.
Milano, Electa,
Jashemski, W. F., 1979. The Gardens of Pompeii. New York: Caratzas, p. 180, fig. 266.
Kockel, V. Funde und Forschungen in den Vesuvstädten 1:
Archäologischer Anzeiger, Heft 3. 1985, pp. 566 f.
Nappo, S. C.,
2005. I triclini di Murecine uso ed interpretazione.
Nappo, S. C.,
2012. L’edificio B di Murecine a Pompei. Un esempio di architettura
ricettiva alla foce del Sarno in Rivista di Studi Pompeiani, Vol. XXIII,
p.89-101.
Nappo, S. C., 2001. La decorazione parietale dell'hospitium dei
Sulpici in località Murecine a Pompei MEFR Antiquité, tome 113, n°2. 2001,
pp. 839-895.
Nappo, S. C., 1999. Nuova indagine archeologica in località Moregine a Pompei in Rivista di Studi Pompeiani, Vol. X, p.185-190.
Terpstra, T. 2012. Murecine Tablets in: R. Bagnall et al. (eds) Encyclopedia of Ancient History. Malden, MA: Wiley Online.
Moregine is the current name-place of an area about 600m south of Pompeii. It has also sometimes been referred to as Murecine or Muregine.
During excavation works in 1959 the construction of the Pompei – Sarno tract of Napoli-Salerno Highway a remarkable building was found characterized by the presence of several triclinia in a portico.
Only partially excavated, this complex
posed at the time of the excavation many technical difficulties, being in
waterlogged ground and under
the water table. Most of the
building was buried under the highway.
At the time of the eruption of 79 AD the building was in disuse; various rooms were used for storage and there were renovation works in progress following the earthquake of 62 AD.
In 1999, while works were being carried out for the construction of the highway's third lane, the northern sector of the above said building was cleared and some splendid frescoes in the "Fourth Style" were removed to be restored: they can now be admired here.
The architectural complex is thus made up of two sectors: first, the portico with triclinia, where the wonderful paintings were found, along with a considerable amount of wood furnishing remnants; and second the north-west thermal sector, where a considerable amount of silverware was unearthed.
The Moregine buildings aimed to welcome and accommodate as guests the wealthy and diversified class of merchants who crowded the many piers of Pompeii Harbour at the estuary of the Sarno River.
[From information notices in Pompeii Palaestra]
About 100m to the
west of the triclinium complex, still standing on the right bank of the river
Sarno, a second building was discovered.
This building,
known as L’edificio B di Murecine a Pompei, excavated in 2000-2001, lies
on the northern bank of the river Sarno at nearly 600 meters southwards from
Porta Stabia in Pompeii. See more below.

Complesso
dei triclini in località Moregine a Pompei. September 2016. Location plan on display in
Boscoreale Antiquarium.
The EDIFICIO DEI TRICLINI, circa 600m south of the Stabian Gate,
is at the bottom right between the autostrada and its slip road.
Photo courtesy of Michael Binns.

Pianta
topografica della località Murecine. Hospitium dei Sulpici e Edificio B.
See Nappo, S. C.,
2012. L’edificio B di Murecine a Pompei. Un esempio di architettura
ricettiva alla foce del Sarno in Rivista di Studi Pompeiani, Vol. XXIII,
p.91 fig. 3.
According to an information card in Boscoreale Antiquarium, the discovery
of a building in the locality of Murecine located about 600 m. south of Porta
Stabiana, occurred during levelling works for the construction of the
Naples-Salerno motorway in 1959. Only partially excavated, this complex posed a
number of technical difficulties at the time of excavation, as it was in
waterlogged ground and below the water table. Most of the building remained
buried under the motorway. The presence of such a complex, which seems to have
had a semi-public character, perhaps intended as the seat of a trading house or
a shipping company or perhaps even as the seat of a collegium or a deversorium, nevertheless bears
witness to the importance of the Pompeian port of call for the collection and
sale of products from a fertile and densely populated hinterland. Of enormous
importance are the 60 wax tablets found in it. At the time of the eruption of
AD 79, the building was in disuse; several rooms were used for storage and there
was work in progress to renovate it following the earthquake of 62AD.
According to Jashemski, “A remarkable structure was discovered on the outskirts of Pompeii in 1959 during the building of the autostrada. The portion of the peristyle excavated had three triclinia on the north side and two on the part of the east side that was uncovered (Fig.266, note 72). The remarkable wax tablets found here, the layout of the part of the building excavated, and its location near the harbour, have led to the identification of this building as the headquarters of a commercial house or of a maritime transport company, such as were known to have existed in Puteoli and in the important ports of the Mediterranean. The unique triclinia opening off the peristyle garden were ideal for businessmen who, then as now, negotiated important deals at mealtimes. Privacy was made possible by pulling out folding panels of the wooden screen, or cancello, which could close off each triclinium. Numerous fragments of these panels were discovered by the excavators. About 300 wax tablets containing financial and legal documents were found in the middle triclinium [B] on the north side, in a cista viminea [wicker basket], which had fallen from the upper rooms. (note 73)
The building was uncovered for only a short time, but a model was made of the part excavated (fig.266), and it can be seen in the Antiquarium at Pompeii.
Note 72: See Elia,
O. Il portico dei triclini del pagus maritimus di Pompeii, Bollettino
d’Arte 1961, Fasc. III, pp.200-211.
Note 73: See Giordano,
C. Su alcune tavolette cerate dell’agro Murecine, Rend/Nap 41, (1966),
p.107-121.
See Jashemski, W. F., 1979. The Gardens of Pompeii. New York: Caratzas, p. 180, fig. 266.
According to Kockel: After the war, two
chance finds again raised the question of the topography of the pagus
maritimus, a suburb to the south-west of the city. In 1959, during work on the motorway in the Località Moregine (now
mostly called Murecine), a complex was cut into, part of which had to be
uncovered in great haste and then buried again (Fig. 23, No. 50; 48, 49). The north wing of a pier peristyle came
to light, with three triclinii of equal size attached to the north and at least
two to the east. A staircase opened up an upper floor, the function of some
other rooms remains uncertain. The triclinium beds were faced with marble. A small channel ran around inside them
and was fed by 14 water jets each. The base of the round table was painted, and the floor was covered
with mosaic. Remnants of
wooden lattices that could close the individual units were preserved. The walls were painted in two zones with
lavish architectures in which stand individual figures showing gods (Zeus,
Hermes, Dioscuri, Athena) or depicting mythical scenes (Admetus before Pelias).
The paintings are in the storeroom in Pompeii [Now on display in Pompeii
Palaestra].
The construction technique and the style of painting date the complex to the time after the earthquake. The construction was not yet completed, as evidenced by the discovery of an anchor, wooden ship accessories and building materials. The interpretation of the complex, whose actual extent is unknown, remains controversial. The numerous triclinii cannot be an ordinary house. A luxurious clubhouse (cf. Julia Felix) or the seat of a corporation was therefore thought of.
The real significance of the excavations
lies in the discovery of a basket with 200-300 fragments of diptych and
triptych, which J. G. Wolf apostrophized as "the most important find of
Roman private and procedural documents that has ever been made". The tablets date from AD 29-61 and refer
to a Sulpician merchant bank in Pozzuoli. The editing of the plates, first entrusted to G. O. Onorato, but
undertaken after his death in 1965 by C. Giordano and F. Sbordone, immediately
aroused violent controversies reminiscent of the Herculaneum controversies of
the 18th century. evoked
commemorative discussions and polemics. In the future it will only be possible
to read the panels, which are very faded today, only on the photos taken
immediately after they were found. Their good publication may put an end to the discussion about the
actual text and open the way to researching the content of these important
documents.
Laut Kockel: Zwei Zufallsfunde haben nach dem Krieg erneut die Frage nach der Topographie
des südwestlich der Stadt liegenden Vorortes, des pagus
maritimus, aufgeworfen. 1959 wurde bei Arbeiten an der Autobahn in der
Località Moregine (jetzt meist Murecine genannt) ein Komplex
angeschnitten, von dem ein Teil in größter Eile freigelegt und wieder
verschüttet werden musste (Abb. 23 Nr. 50; 48. 49). Dabei kam der Nordflügel eines
Pfeilerperistyls zutage, an
dem im Norden drei, im Osten wenigstens zwei
gleichgroße Triclinien
anschlossen. Eine Treppe erschloss ein Obergeschoß, die Funktion einiger weiterer Räume bleibt ungewiss. Die Tricliniumbetten
waren mit Marmor verkleidet. Ein kleiner Kanal lief an ihnen innen um und wurde
von jeweils 14 Wasserdüsen gespeist. Der Sockel des runden Tisches war bemalt, der Boden mit Mosaik ausgelegt. Reste von Holzgittern, die die einzelnen Einheiten verschließen konnten, blieben erhalten. Die Wände waren in zwei Zonen mit großzügigen Architekturen
ausgemalt, in denen einzelne Figuren stehen, die Götter (Zeus, Hermes, Dioskuren, Athena) zeigen oder mythische Szenen (Admet vor Pelias) wiedergeben. Die Malereien befinden sich im Magazin in Pompeji [Jetzt ausgestellt in Pompeji Palästra].
Die Bautechnik
und der Stil
der Malerei datieren die Anlage in die Zeit
nach dem Erdbeben. Der Bau war noch
nicht fertiggestellt, wie der Fund eines Ankers, von hölzernem Schiffszubehör
und Baumaterial erweisen. Die Deutung des Komplexes, dessen eigentliche Ausdehnung unbekannt ist, bleibt umstritten. Um ein gewöhnliches Wohnhaus kann es sich bei den zahlreichen Triclinien nicht handeln. Es ist daher an ein luxuriöses Clubhaus (vgl. lulia Felix) oder an den Sitz einer Korporation gedacht worden.
Die
eigentliche Bedeutung der Ausgrabungen liegt aber in dem Fund eines Korbes mit 200-300 Fragmenten von Diptycha und Triptycha, den J.. G. Wolf als „den bedeudendsten Fund römischer
Privat- und Prozeßrechtsurkunden, der je gemacht worden ist
„, apostrophiert. Die Tafeln stammen aus den Jahren 29-61 n. Chr. und beziehen sich auf eine Handelsbank der Sulpicier in Pozzuoli. Die Edition der
Tafeln, zuerst G.
O. Onorato übertragen, nach dessen Tod 1965 aber von C. Giordano und F. Sbordone vorgenommen, hat sofort heftige, an die Herkulaneum-Kontroversen des 18. Jhs.
erinnernde Diskussionen und Polemiken hervorgerufen. Die Lesung der heute stark verblaßten
Tafeln wird in Zukunft nur noch auf den sofort nach der Auffindung angefertigten Photos möglich sein. Deren gute Veröffentlichung mag die Diskussion um den eigentlichen Text beenden und den Weg zur inhaltlichen Erforschung dieser bedeutenden Dokumente eröffnen.
See Kockel V. Funde und Forschungen in den Vesuvstädten 1:
Archäologischer Anzeiger, Heft 3. 1985, p. 568 and fn. 314-317.

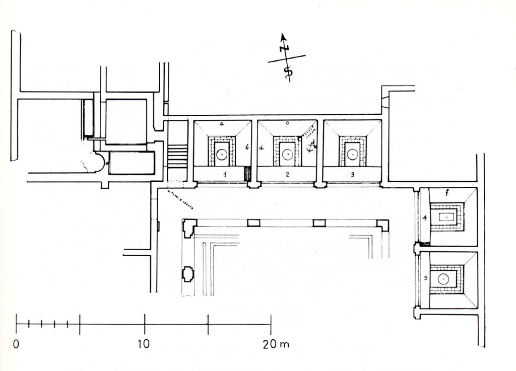
Complesso
dei triclini in località Moregine a Pompei dopo gli scavi del 2000.
Plan of triclinium building in the
località Murecine after 2000
excavations.
See Nappo, S. C., 2001. La decorazione
parietale dell'hospitium dei Sulpici in località Murecine a Pompei MEFR
Antiquité, tome 113, n°2. 2001, pp. 848 fig. 2.

Complesso
dei triclini in località Moregine a Pompei. Plan of triclinium building in the
località Murecine before 2000 excavations.
See Kockel, V. Funde und Forschungen in den Vesuvstädten 1:
Archäologischer Anzeiger, Heft 3. 1985, abb. 48.
See Elia, O. Il
portico dei triclini del pagus maritimus di Pompeii, Bollettino d’Arte
1961, Fasc. III, pp.200 Fig. 1.

Complesso
dei triclini in località Moregine a Pompei. Axonometric drawing of triclinium building
in the località Murecine after 1959 excavations.
See Kockel V. Funde und Forschungen in den Vesuvstädten 1:
Archäologischer Anzeiger, Heft 3. 1985, abb. 49.

Complesso
dei triclini in località Moregine a Pompei. Excavations in progress. Photo on display in
Pompeii Palaestra September 2015.

Complesso dei triclini
in località Moregine a Pompei. September
2015.
December
2000 model of “Il Complesso dei triclini in località Moregine a Pompei.”
Looking north.
Foto Annette Haug,
ERC Grant 681269 DÉCOR.

Complesso dei triclini
in località Moregine a Pompei. September 2015. December
2000 model of excavated area looking west.
Foto
Annette Haug, ERC Grant 681269 DÉCOR.

Complesso dei triclini
in località Moregine a Pompei. September 2015. December
2000 model of excavated area.
At least five
triclinia are clustered around a pillared portico.
Triclinium A,
Triclinium B and Triclinium C are on the north side.
Triclinium D and
Triclinium E are on the east side and are shown as undecorated.
The baths suite is
in the north-west corner at the top of this photo.
The kitchen is in
the north-east corner adjoining the two groups of triclinia.
Foto
Annette Haug, ERC Grant 681269 DÉCOR.

Complesso dei triclini
in località Moregine a Pompei. July 2010. Triclinium A,
reconstruction photograph as shown in Boscoreale Antiquarium.
The triclinium beds were faced with marble. A small channel ran around inside them and was fed by 14 water jets each. The base of the round table was painted, and the floor was covered with mosaic. Remnants of wooden lattices that could close the individual units were preserved. The walls were painted in two zones with lavish architectures in which stand individual figures showing gods (Zeus, Hermes, Dioscuri, Athena) or depicting mythical scenes (Admetus before Pelias). Photo courtesy of Michael Binns.

Complesso dei triclini
in località Moregine a Pompei. 1959.
Triclinium, lattice shutters on paired wheels that closed off the
front of a triclinium.

Complesso dei triclini
in località Moregine a Pompei. September 2015.
Triclinium, paired wheels from the lattice shutters that closed
off the front of a triclinium.

Complesso dei triclini
in località Moregine a Pompei. September 2015. North
side on December 2000 model.
Triclinium A, B and
C are on the north side of the pillared portico.
The doorway to the
kitchen is in the north-east corner, bottom right in the photo.
Foto
Annette Haug, ERC Grant 681269 DÉCOR.

Complesso dei triclini in località Moregine a Pompei. May 2018. North side on December 2000 model.
Triclinium A, B and C are on the north side of the pillared portico. Photo courtesy of Buzz Ferebee.

Complesso dei triclini
in località Moregine a Pompei. September 2016.
North side on an earlier model.
Note the colouring
of the pillars which is absent on the December 2000 model.
The peristyle enclosed a garden, with myrtle plants and canals. Photo courtesy of Michael Binns.
The finest part of Moregine complex is made up by the three northern triclinia, with marble-clad beds, upon which owners and guests reclined, and the central round dining tables embellished with water-plays.
A lead pipe is still connected to the base of one of the two frescoed dining tables, currently under restoration in the Exhibition's last section.
The wall decoration, in a highly refined "Fourth Style" datable to the Claudian-Neronian age (about the middle first century A.D.) is inspired to a consistent, structured figurative program referring to a top-level cultural environment - such as that of the convivial habitues. The central triclinium is adorned, on a black background, with life-size figures of Helen and the Dioscuri amidst the Seasons' imagery. The side ones respectively depict, on a red background, Apollo with the Muses (west triclinium), and the personification of a river (perhaps the Sarno), with winged Victories, surrounded by offer-bearers, appearing to evoke the apollonian and dionysiac world (eastern triclinium}.
[From
information notice in Pompeii Palaestra]
According to Mario Pagano, the pictorial decoration had not long since been
redone, and work was in progress at the time of the eruption, so building
material was piled up in triclinium D. Some paintings are of such quality that
the presence of a well-endowed craftsman is certain, notable above all for the sound
setting of the figures.
See Guzzo, P., (A
Cura di), 1997. Pompeii: Picta Fragmenta. Torino: Umberto Allemandi,
p.134-5.
Gli affreschi
di Moregine sono finalmente visibili a tutti, in esposizione nella Palestra
Grande appena restaurata.
La difficoltà dello scavo, a causa della presenza della falda freatica, aveva
indotto già nel 1959 ad asportare le pitture. Queste ultime, in IV stile,
attribuibili all’epoca Neroniana, erano opera delle stesse officine che
decorarono anche la Casa dei Vettii. Lo scavo ripreso in occasione della
costruzione della terza corsia dell’Autostrada Salerno-Reggio Calabria [2000],
ha permesso di riportare in luce, oltre alle strutture archeologiche, anche
materiali di grande interesse quali tavolette cerate con contratti registrati,
elementi architettonici e decorativi in legno perfettamente conservati, un
tesoro di argenterie di eccezionale qualità.
The Moregine frescoes are now visible to all, on display in the newly restored Palaestra Grande.
The difficulty of the excavation, due to the presence of the water table, had already led in 1959 to remove the paintings. The latter, in IV style, attributable to the Neronian era, were the work of the same workshops that also decorated the Casa dei Vettii. The excavation, resumed during the construction of the third lane of the Salerno-Reggio Calabria motorway [2000], brought to light not only the archaeological structures, but also materials of great interest, such as waxed tablets with recorded contracts, perfectly preserved architectural and decorative wooden elements, and a treasure trove of silverware of exceptional quality.

Complesso dei triclini
in località Moregine a Pompei. September 2015. Triclinium A as shown on model on display in the
Palaestra.
Foto Annette Haug, ERC
Grant 681269 DÉCOR.

Complesso dei triclini
in località Moregine a Pompei. September 2015. Triclinium A as shown on a display in the
Palaestra.
A small channel ran around inside the
triclinium and was fed by 14 water jets.
The base of the round table was painted
with plants, flowers and fruits, and the floor was covered with mosaic.

Complesso dei triclini
in località Moregine a Pompei. September 2015. Triclinium A walls on display in the Palaestra.
Foto
Annette Haug, ERC Grant 681269 DÉCOR.

Complesso dei triclini in località Moregine a Pompei. Triclinium A, west wall with the muses Calliope and Terpsichore.
Unlike the other triclinii this wall only has two figures remaining.
According to Nappo, the lack of the left figure on the west wall is strange in that no fragments were found on the ground that would suggest that the fresco collapsed at this point, among other things in archive photo no. 2400 you can clearly see the upper part of the middle zone still in situ, but in photo n. 2472 the wall already shows the large gap with a very rudimentary locking system that holds the central figure. In fact it seems to have been detached, unfortunately there are no traces of all this either in the excavation diaries or in the deposits.
Secondo Nappo,
la mancanza della figura di sinistra della parete ovest è strana in quanto non
si sono trovati a terra frammenti che facessero supporre un crollo
dell’affresco in questo punto, tra l’altro nella foto d’archivio n. 2400 si
vede chiaramente la parte alta della zona mediana ancora in situ, ma nella foto
n. 2472 la parete mostra già l’ampia lacuna con un sistema di bloccaggio molto
rudimentale che tiene la figura centrale. In effetti sembra che sia stata
staccata, purtroppo non ci sono tracce di tutto questo né nei diari di scavo né
nei depositi.

Complesso dei triclini in
località Moregine a Pompei. October 2022.
Triclinium A, west wall on display in Pompeii Palaestra. Photo courtesy of Klaus Heese

Complesso dei triclini in località Moregine a Pompei. May 2018. Triclinium A, west wall.
Terpsichore the Muse of dance and chorus with a cithara. Photo courtesy of Buzz Ferebee.

Complesso dei triclini in località Moregine a Pompei. December 2019.
Triclinium A, west wall. Terpsichore the Muse of dance and chorus with a cithara. Photo courtesy of Giuseppe Ciaramella.

Complesso dei triclini in
località Moregine a Pompei. September 2015. Triclinium A,
west wall on display in Pompeii Palaestra.
Foto Annette Haug, ERC Grant
681269 DÉCOR.

Complesso dei triclini in
località Moregine a Pompei. September 2015.
Triclinium A, part of west wall on
display in Pompeii Palaestra.
Foto Annette Haug, ERC Grant
681269 DÉCOR.

Complesso dei triclini in località Moregine a Pompei. April 2019. Triclinium A, west wall.
Calliope the Muse of eloquence and epic poetry with diptych
and pen. Photo courtesy of Rick Bauer.

Complesso dei triclini in
località Moregine a Pompei.
Triclinium A, north wall, Apollo with muses Clio with a scroll and Euterpe with a double flute.

Complesso
dei triclini in località Moregine a Pompei. September 2024.
Triclinium A, north wall, on display
in Pompeii Palaestra. Photo courtesy of Giuseppe Ciaramella.

Complesso dei triclini in località Moregine a Pompei. October 2022.
Triclinium A, north wall, on display in Pompeii Palaestra. Photo courtesy of Klaus Heese.

Complesso dei triclini in località Moregine a Pompei. December 2019.
Triclinium A, north wall, Clio the Muse of history, with a
scroll. Photo courtesy of Giuseppe
Ciaramella.

Complesso
dei triclini in località Moregine a Pompei. September 2015.
Triclinium A, north wall, Clio the Muse of history, with a scroll.

Complesso dei triclini in località Moregine a Pompei. December 2019.
Triclinium A, north wall, Apollo with cithara. Photo courtesy of Giuseppe Ciaramella.

Complesso
dei triclini in località Moregine a Pompei. April 2019.
Triclinium A, north wall, Apollo with cithara. Photo
courtesy of Rick Bauer.
This has also been suggested as Erato, the Muse of lyric poetry, particularly erotic poetry, and mimic imitation, who is often depicted with a wreath of myrtle and roses, and holding a lyre, or a small kithara, a musical instrument often associated with Apollo.

Complesso
dei triclini in località Moregine a Pompei. April 2019.
Triclinium A, north wall, detail of Apollo with cithara. Photo courtesy of Rick Bauer.

Complesso dei triclini in località Moregine a Pompei. September 2024.
Euterpe the muse of
flutes and music with a double flute. Photo
courtesy of Giuseppe Ciaramella.

Complesso
dei triclini in località Moregine a Pompei. April 2019. Triclinium A, north wall.
Euterpe the muse of flutes and music with a double flute. Photo
courtesy of Rick Bauer.

Complesso dei triclini in località Moregine a Pompei. December 2019.
Triclinium A, north wall. Euterpe the muse of flutes and
music with a double flute.
Photo courtesy of
Giuseppe Ciaramella.

Complesso dei triclini in località Moregine a Pompei. Triclinium A, east wall with the muses Urania, Thalia and Melpomene.

Complesso dei triclini in località Moregine a Pompei. October 2022.
Triclinium A, east wall on display in Pompeii Palaestra. Photo courtesy of Klaus Heese

Complesso dei triclini in località Moregine a Pompei. September 2024.
Triclinium A, east wall. Urania the muse of astronomy with a
globe. Photo courtesy of Giuseppe Ciaramella.

Complesso dei triclini in località Moregine a Pompei. December 2019.
Triclinium A, east wall. Urania the muse of astronomy with a
globe. Photo courtesy of Giuseppe
Ciaramella.

Complesso dei triclini in località Moregine a Pompei. September 2015.
Triclinium A, east wall. Urania the muse of astronomy with a globe.

Complesso dei triclini in località Moregine a Pompei. September 2024.
Triclinium A, east wall. Thalia the muse of comedy and pastoral poetry with comic mask and crook.
Photo courtesy of Giuseppe Ciaramella.

Complesso dei triclini in località Moregine a Pompei. December 2019.
Triclinium A, east wall. Thalia the muse of comedy and pastoral poetry with comic mask and crook.
Photo courtesy of
Giuseppe Ciaramella.

Complesso dei triclini in località Moregine a Pompei. April 2019. Triclinium A, east wall.
Thalia the muse of comedy and pastoral poetry with comic
mask and crook. Photo courtesy of
Rick Bauer.

Complesso dei triclini in località Moregine a Pompei. September 2024.
Triclinium A, east wall. Melpomene the muse of tragedy with tragic mask and club.
Photo courtesy of
Giuseppe Ciaramella.

Complesso
dei triclini in località Moregine a Pompei. September 2015.
Triclinium A, east wall. Melpomene the muse of tragedy with tragic mask and club.

Complesso
dei triclini in località Moregine a Pompei. September 2015. Triclinium B on
December 2000 model.
Foto Annette Haug, ERC
Grant 681269 DÉCOR.

Complesso
dei triclini in località Moregine a Pompei. Triclinium B, north wall.

Complesso
dei triclini in località Moregine a Pompei. May 2018. Triclinium B, north
wall.
Painting of a goddess (Juno?) with handmaiden on display in the Pompeii Palaestra. Photo courtesy of Buzz Ferebee.
According to Nappo this may be Helen as part of the myth of Helen and the twin heroes but the absence of the head makes it hypothetical, justified only by the iconography that refers to this myth .
See Nappo, S. C., 2001. La decorazione parietale
dell'hospitium dei Sulpici in località Murecine a Pompei MEFR Antiquité,
tome 113, n°2. 2001, pp. 882.

Complesso dei triclini in località Moregine a Pompei. Triclinium B, north wall. Goddess with handmaiden, possibly Juno?
See Guzzo, P., (A
Cura di), 1997. Pompeii: Picta Fragmenta. Torino: Umberto Allemandi, p.142
no. 99.
Photo courtesy of Stefano Bolognini, via Wikimedia Commons.

Complesso
dei triclini in località Moregine a Pompei. 1959.
Triclinium B, west wall with painting of one of the Dioscuri holding a
horse. Photo courtesy of Michael Binns
Excavation photo on display in Boscoreale Antiquarium, September 2016.
The side of the marble clad couch and the mosaic floor can also be seen.

Complesso dei triclini in località
Moregine a Pompei. September
2015. Triclinium
B, west wall on display in Pompeii Palaestra.

Complesso dei triclini in località Moregine a Pompei. May 2018.
Triclinium B, west wall, on display in the Pompeii Palaestra. Photo courtesy of Buzz Ferebee.

Complesso dei triclini in località Moregine a Pompei. May 2018.
Triclinium B, west wall, painting of one of the Dioscuri on display in the Pompeii Palaestra. Photo courtesy of Buzz Ferebee.

Complesso
dei triclini in località Moregine a Pompei. Triclinium B, west wall, painting of one
of the Dioscuri.
Photo courtesy of Stefano Bolognini, via Wikimedia Commons.

Complesso
dei triclini in località Moregine a Pompei. April 2019.
Triclinium B, west wall, painting of one of the Dioscuri. Photo courtesy of Rick Bauer.

Complesso
dei triclini in località Moregine a Pompei.
Triclinium B, west wall, painting of winged genius in flight with vase in
hand.
Photo courtesy of Stefano Bolognini, via Wikimedia Commons.
According to Nappo, to the left of the Dioscurus, the only lateral figure
of the room is preserved, albeit incomplete. This consists of a flying genie with wings
not made of feathers but rather of flowering twigs with a basket on the left
full of flowers and a large helicoidal shell, as if it were a wind instrument,
resting on the right shoulder and supported with the hand.
See Nappo, S. C., 2001. La decorazione
parietale dell'hospitium dei Sulpici in località Murecine a Pompei MEFR
Antiquité, tome 113, n°2. 2001, p. 884, fig. 28.

Complesso dei triclini in
località Moregine a Pompei. May 2018. Triclinium B, east wall, on display in the
Pompeii Palaestra.
In the bottom centre is the painting of the second of the Dioscuri. Photo courtesy of Buzz Ferebee.

Complesso
dei triclini in località Moregine a Pompei. Triclinium B, east wall, painting of the
second of the Dioscuri.
The representation shows close similarities with that from the House of the Dioscuri in Pompeii.
See Guzzo, P., (A
Cura di), 1997. Pompeii: Picta Fragmenta. Torino: Umberto Allemandi, p.142
no. 99.

Complesso
dei triclini in località Moregine a Pompei. September 2015. Triclinium C on
December 2000 model.
Foto Annette Haug, ERC
Grant 681269 DÉCOR.

Complesso
dei triclini in località Moregine a Pompei. Triclinium C. West, north and east walls.

Complesso
dei triclini in località Moregine a Pompei. 1959 excavation photograph on display in
Pompeii Palaestra September 2015.
Triclinium C. West wall in situ. Note the water that was a problem during excavation.

Complesso
dei triclini in località Moregine a Pompei. Triclinium C, west wall.

Complesso dei triclini in località Moregine a Pompei. September 2015. Triclinium C, west wall on display in Pompeii Palaestra.
Foto Annette Haug, ERC Grant
681269 DÉCOR.

Complesso dei triclini in località Moregine a Pompei. October 2022.
Triclinium C, west wall, with winged genius. Photo courtesy of Klaus Heese.

Complesso dei triclini in località Moregine a Pompei. September 2024.
Triclinium
C, west wall. Winged Victory with the attributes of Athena. Photo
courtesy of Giuseppe Ciaramella.

Complesso dei triclini in località Moregine a Pompei. April 2019.
Triclinium C, west wall. Winged Victory
with the attributes of Athena. Photo
courtesy of Rick Bauer.

Complesso dei triclini in località Moregine a Pompei. April 2019. Triclinium C, west wall.
Robed figure with crown of leaves and holding what appears
to be a scroll. A poet or philosopher?
Photo courtesy
of Rick Bauer.

Complesso
dei triclini in località Moregine a Pompei. 1959 excavation photo. On display in
Pompeii Palaestra September 2015.
Triclinium C. North and east walls in situ with marble clad triclinium and
round table with plant decorations.
Water channels run around the sides of the triclinium and remains of a
water jet can be seen at the rear.
Water was a problem during excavation as the complex was below the water table after the eruption, though this had also helped preserve some items.

Complesso
dei triclini in località Moregine a Pompei.
Triclinium C, north wall. The river god Sarno is centre with robed female and nude male offer-bearers.

Complesso dei triclini in località Moregine a Pompei. October 2022.
Triclinium C, north wall on display in Pompeii Palaestra. Photo courtesy of Klaus Heese.

Complesso dei triclini in località Moregine a Pompei. September 2024.
Triclinium C, green robed female from north wall. Photo courtesy of Giuseppe Ciaramella.

Complesso
dei triclini in località Moregine a Pompei. April 2019.
Triclinium C, north wall green robed female perfumer or
offer-bearer. Photo courtesy of
Rick Bauer.

Complesso dei triclini in località Moregine a Pompei. Triclinium C, architectural detail from north wall.

Complesso dei triclini in località Moregine a Pompei. September 2024.
Triclinium C, north wall, detail of Sarno River God. Photo
courtesy of Giuseppe Ciaramella.

Complesso dei triclini in località Moregine a Pompei. October 2022.
Triclinium C, north wall, detail of Sarno River God. Photo courtesy of Klaus Heese

Complesso dei triclini in località Moregine a Pompei. April 2019.
Triclinium C, north wall, detail of Sarno River God. Photo
courtesy of Rick Bauer.

Complesso dei triclini in località Moregine a Pompei. September 2024.
Triclinium C, north wall. Nude male offer-bearer with plate in right hand and bow in left.
Photo courtesy of
Giuseppe Ciaramella.

Complesso dei triclini in località Moregine a Pompei. September 2015.
Triclinium C, north wall. Nude male offer-bearer with plate in right hand and bow in left.

Complesso dei triclini in località Moregine a Pompei. Triclinium C, east wall. Winged Victory with two offer-bearers.

Complesso dei triclini in località Moregine a Pompei. October 2022.
Triclinium C, east wall on display in Pompeii Palaestra. Photo courtesy of Klaus Heese

Complesso dei triclini in località Moregine a Pompei. September 2024. Triclinium C, east wall.
Figure dressed in green, possibly Polyhymnia the muse of hymns and sacred poetry, or perhaps a maenad with bacchic attributes.
Photo courtesy of
Giuseppe Ciaramella.

Complesso
dei triclini in località Moregine a Pompei. September 2015.
Triclinium C, east wall on display in Pompeii Palaestra.
Figure dressed in green, possibly Polyhymnia the muse of hymns and sacred poetry, or perhaps a maenad with bacchic attributes.

Complesso dei triclini in località Moregine a Pompei. September 2024.
Triclinium C, east wall.
Vittoria con
tripode. Vittoria with
tripod, on display in Pompeii Palaestra.
Vittoria alata con gli attributi di Apollo. Winged Victory with the attributes of Apollo.
This is shown on the east wall of triclinium C but may have come from Triclinium D or E.
Photo courtesy of
Giuseppe Ciaramella.
![Complesso dei triclini in località Moregine a Pompei. April 2019. Triclinium C, east wall.
Vittoria con tripode. Vittoria with tripod, on display in Pompeii Palaestra.
Vittoria alata con gli attributi di Apollo. Winged Victory with the attributes of Apollo.
This is shown on the east wall of triclinium C but may have come from Triclinium D or E.
According to Mario Pagano, the difference in the background colour, red in this case, [triclinium D has black background colour] gives rise to the suspicion that this Winged Victory does not belong, as shown by the confused documentation, to the destination of triclinium D, but to that of the adjacent triclinium [E?], of which there is no recovery of the pictorial decoration.
See Guzzo, P., (A Cura di), 1997. Pompeii: Picta Fragmenta. Torino: Umberto Allemandi, p. 149 no. 116.
Photo courtesy of Rick Bauer.](Villa_050%20Scafati%20Contrada%20Murecine,%20Fondo%20Cascone%20p1_files/image089.jpg)
Complesso
dei triclini in località Moregine a Pompei. April 2019. Triclinium C, east wall.
Vittoria con
tripode. Vittoria with
tripod, on display in Pompeii Palaestra.
Vittoria alata con gli attributi di Apollo. Winged Victory with the attributes of Apollo.
This is shown on the east wall of triclinium C but may have
come from Triclinium D or E. Photo
courtesy of Rick Bauer.
According to Mario Pagano, the difference
in the background colour, red in this case, [triclinium D has black
background colour] gives rise to the suspicion that this Winged Victory
does not belong, as shown by the confused documentation, to the destination of
triclinium D, but to that of the adjacent triclinium [E?], of which
there is no recovery of the pictorial decoration.
See Guzzo, P., (A
Cura di), 1997. Pompeii: Picta Fragmenta. Torino: Umberto Allemandi, p.
149 no. 116.

Complesso dei triclini in località Moregine a Pompei. September 2024. Triclinium C, east wall.
Nude male
offer-bearer with a cloak over the left shoulder and holding a plate of
offerings and a branch.
Photo courtesy of Giuseppe Ciaramella.

Complesso dei triclini in località Moregine a Pompei. September 2015. Triclinium C, east wall.
Nude male offer-bearer with a cloak over the left shoulder
and holding a plate of offerings and a branch.